立即預約 立即預約
免費定制整裝家居

免費定制整裝家居

一站置家 全程無憂 一省到底
hide.png

當前位置: 首頁 > 裝修案例效果圖 > 金地錦城

金地錦城 81平 北歐風格效果圖

收藏
案例風格 北歐 案例戶型 二居 案例面積 81平米
樓盤名稱 金地錦城 設計師 林鳳設計師 案例類型 改善性住宅

設計理念:金地錦城81平2居室林鳳裝飾通過與主人的溝通和了解,知道業(yè)主比較喜歡北歐風格。比較喜歡北歐的簡潔丶自然

客廳
第1張
第2張
第3張
第4張
餐廳
第1張
第2張
臥室
第1張
第2張
衛(wèi)生間
第1張
廚房
第1張
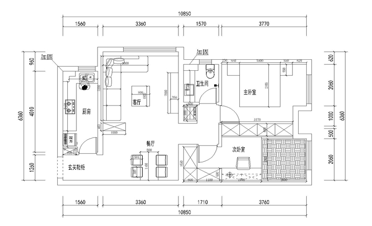
戶型圖
第1張
  • 案例詳情

金地錦城-81平-北歐風格-客廳1.jpg 金地錦城-81平-北歐風格-客廳2.jpg 金地錦城-81平-北歐風格-客廳3.jpg 金地錦城-81平-北歐風格-首圖.jpg

金地錦城81平2居室北歐風格林鳳裝飾的客廳的墻面是北歐風格最常見的白色,簡單,清爽,干凈,使空間看上去特別的寬敞、通透。背景墻使用簡單的石膏線做修飾,鋪上簡單的壁紙,簡潔的同時不會顯得特別單調。

金地錦城-81平-北歐風格-餐廳1.jpg 金地錦城-81平-北歐風格-餐廳2.jpg

金地錦城81平2居室北歐風格林鳳裝飾的餐廳的顏色搭配由客廳延伸出來,讓整個空間看起來更加的大。冷色的墻面與暖色的餐桌餐具,讓整個餐廳溫馨起來,增加主人就餐的食欲。

金地錦城-81平-北歐風格-次臥.jpg 金地錦城-81平-北歐風格-主臥.jpg

金地錦城81平2居室北歐風格林鳳裝飾的臥室作為睡眠、休息的地方。床與家具選用了白色和,讓臥室看起來更加的舒服,讓主人在休息的時候更加的舒心。

金地錦城-81平-北歐風格-衛(wèi)生間.jpg

金地錦城81平2居室北歐風格林鳳裝飾的衛(wèi)生間選用白色的地磚和墻磚,體現出北歐風格的衛(wèi)生間設計,簡潔、舒適。

金地錦城-81平-北歐風格-廚房.jpg

金地錦城81平2居室北歐風格林鳳裝飾的廚房在顏色上以白色和深木色為主,沒有華麗的裝飾裝點,實木的櫥柜設計,流利的線條配上大理石的臺面,讓整體顯得簡單雅素。

金地錦城81平-北歐風格-戶型圖.jpg

案例設計師

林鳳設計師

設計師:林鳳設計師

從業(yè)時間:7年

設計理念:專注做最自然的設計。

預約設計師

算算你家裝修多少錢

報名即享豐厚贈品,享半價裝修

免費報價
咨詢熱線:400-656-9909
20190221103704574636.jpg

精品設計案例

20180612134930523248.jpg 服務號二維碼.jpg